Moderne gelijkvloerse gevel met grote glazen schuifdeuren, een grijs porseleinen terras en geïntegreerd zwembad. Overstekende daken zijn voorzien van inbouwspots.
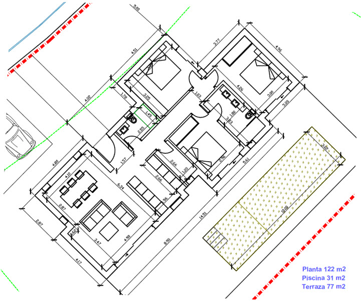
Gedetailleerde architecturale plattegrond van de gelijkvloerse indeling met drie slaapkamers, open woonruimte, terras en het zwembad.
Technische tekening van de zuidwestelijke gevel met details over het architectonisch profiel, de terreinhelling en de plaatsing van het zwembad.
Gedetailleerde architecturale plattegrond van de villa van 122 m2, met de indeling van drie slaapkamers, de woonkamer en het buitenzwembad van 10x3 meter.
Luchtfoto van het project met vijf moderne gelijkvloerse villa's met privézwembad, terrasvormig gelegen in de heuvels van Pedreguer.
Luchtfoto van het nieuwbouwproject in Pedreguer met vijf moderne gelijkvloerse villa's, gelegen aan een gebogen weg in een bosrijke mediterrane omgeving.
Luchtfoto van de verkaveling in Pedreguer, met de moderne villa's met zwembad en het weidse uitzicht over de kustlijn en het omliggende berglandschap.
7
Moderne nieuwbouw villa in Pedreguer met panoramisch uitzicht
625.000€
Pedreguer
Ref: BG-56
Moderne nieuwbouw villa in Pedreguer met panoramisch uitzicht
Dit moderne gelijkvloerse villaproject is gelegen in een rustige omgeving van Pedreguer en biedt een mix van hedendaags design en functioneel wonen. De woning is gelegen op een helling, is op het zuiden georiënteerd en biedt een weids panoramisch uitzicht op de omliggende vallei en de bergen. Met de bouwvergunning reeds in bezit, wordt de bouwtijd geschat op twaalf maanden, wat een vlotte overgang naar uw nieuwe woning mogelijk maakt. De indeling van het interieur beslaat 122 vierkante meter woonoppervlakte, zorgvuldig gepland om elke vierkante meter te optimaliseren. Bij binnenkomst leidt een hal naar een ruime open woon- en eetkamer, geïntegreerd met een moderne keuken. Deze centrale leefruimte is ontworpen om natuurlijk licht te maximaliseren via grote glazen schuifdeuren en biedt directe toegang tot het buitenterras, waardoor een naadloze overgang tussen binnen en buiten ontstaat. De villa beschikt over een aparte wasruimte voor extra gemak. Het slaapgedeelte bestaat uit drie slaapkamers. De master suite beschikt over een eigen badkamer, terwijl twee extra tweepersoonsslaapkamers een goed uitgeruste familiebadkamer delen. Alle slaapkamers zijn voorzien van inbouwkasten en grote ramen om van de natuurlijke omgeving te genieten. Het exterieur van de woning is ontworpen voor de mediterrane levensstijl. Een groot terras van 77 vierkante meter biedt voldoende ruimte om buiten te eten en te ontspannen. Het middelpunt van de tuin is een privézwembad van 10 x 3 meter. Het perceel is voorzien van een eigen parkeerplaats buiten voor twee voertuigen. Gelegen op korte afstand van het centrum van Pedreguer, biedt de villa gemakkelijke toegang tot lokale voorzieningen, winkels en restaurants, terwijl een gevoel van privacy en verbondenheid met de natuur behouden blijft.
Belangrijke mededeling
De informatie over deze woning wordt uitsluitend ter informatie verstrekt en heeft geen contractuele waarde. Ze kan onderhevig zijn aan fouten, prijswijzigingen, omissies of marktonttrekking zonder voorafgaande kennisgeving. Om de juistheid van de gegevens te bevestigen, raden wij u aan contact op te nemen met Andrea Y Olaf Inmobiliaria.
Zwembad
Privé zwembad
Terrein
Hellend terrein
Exterieur
Terras
Uitzichten
Uitzicht op de bergen
Uitzicht op het landschap
Panoramisch uitzicht
We gebruiken cookies om uw browse-ervaring te verbeteren, gepersonaliseerde advertenties of inhoud te serveren en ons verkeer te analyseren. Door op "Alles accepteren" te klikken, stemt u in met ons gebruik van cookies.